- woning met tuin
- oppervlakte woning ca 140 - 145m²
- 3 slaapkamers
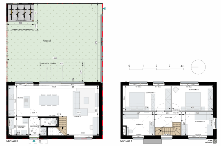
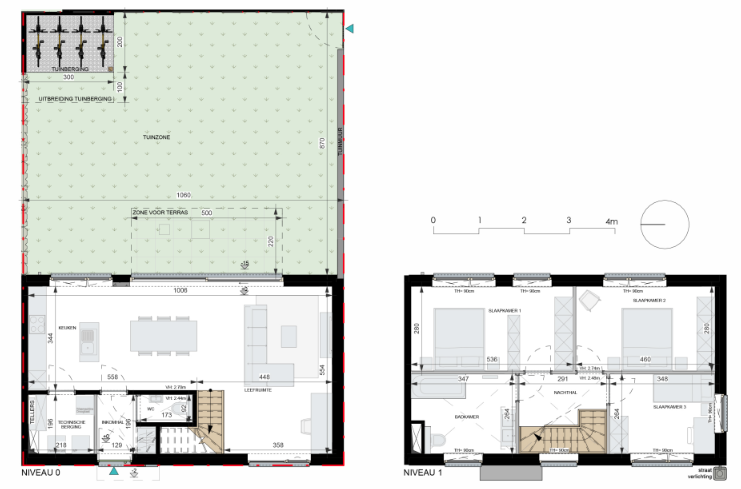
- breedgevelwoning
- bewoonbare opp. ca 134m²
- 3 slaapkamers
UITVERKOCHT
Downloads
Bekijk de rest uit ons aanbod
- ruime gezinswoning
- oppervlakte woning ca 156-163m²
- 3 slaapkamers en bureau
- breedgevelwoning
- bewoonbare opp. ca 134m²
- 3 slaapkamers
- Woning met grote zuidtuin
- oppervlakte ca 148m²
- 3 slaapkamers
Neem contact met ons op
Gelieve de volgende velden in te vullen:
- {{validation.errorMessage}}
Onze andere projecten
Net gelanceerd!
Luxury residence
Wonen aan de mooiste oever van de Schelde
Voor u bewaard aan de prijs van toen
Gezellig, groen & grandioos!
Moving up in life
Mijn thuis tussen stad en hei